Cambridge Highland Residence

Description

  • Location: Cambridge, MA
  • Square feet: 8,400 S.F.
  • Levels: 4 story house
  • Equipment: NavVis VLX mobile scanner and Trimble X7 tripod for exterior.
  • Scan time: 2 hours

Deliverables:

  • Point Cloud:
  • Virtual Tour:200 images
  • Revit Model
  • Time to Deliver: 2 weeks after scanning was complete.

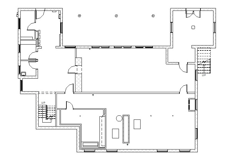
Point Cloud - First Floor

Point Cloud - Second Floor

Revit Model

Revit - Basement

View More

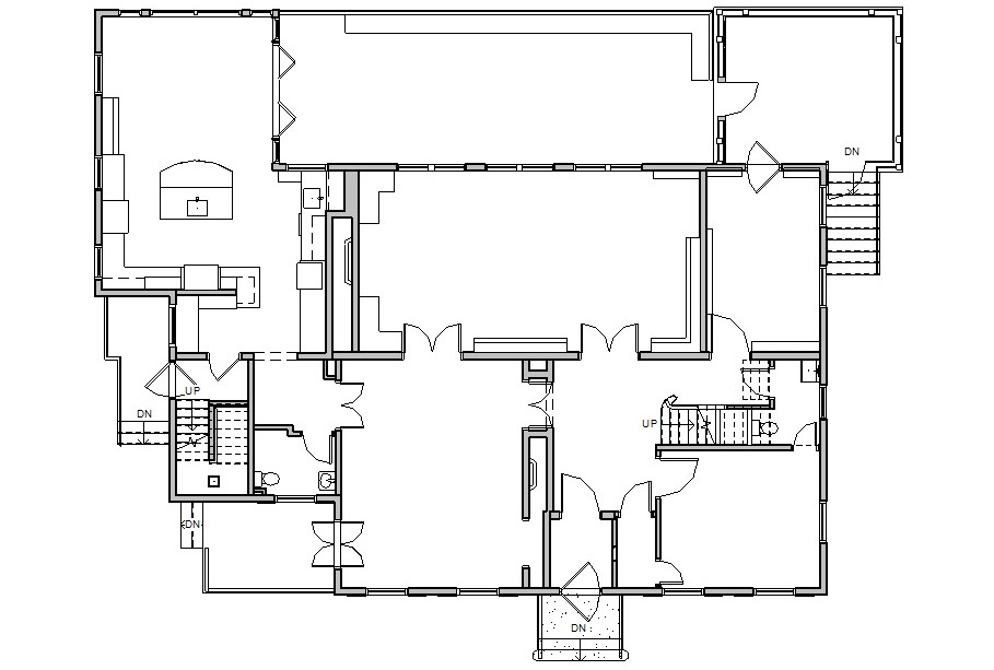
Revit - First Floor

View More

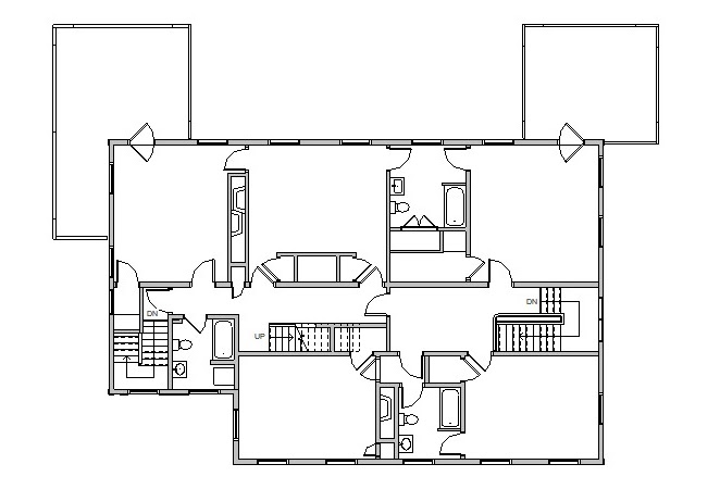
Revit - Second Floor

View More

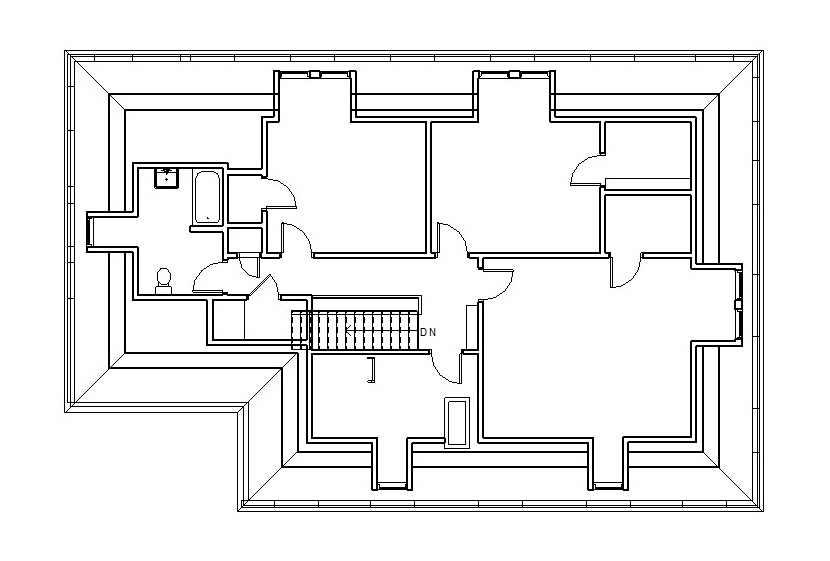
Revit - Attic

View More
0