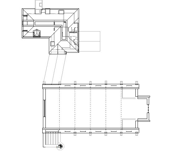
Description
Location: Newtonville, MA
Square feet: 4,500 S.F. Church and 3,000 S.F. Parish House
Levels: 2 Levels
Details: Details: After scanning, we delivered 2D drawings for the client to use for planning. Should the project move forward, all the 3D details are in the point cloud and can be used to develop a complete 3D model and related design documents.
Deliverables:
- Point Cloud
- Virtual Tour
