St. Katherine Church

Description

  • Location: Roxbury, MA
  • Levels: 3 Floors
  • Details: Equipment: NavVis VLX mobile scanner and Trimble X7 tripod for exterior.

Deliverables:

  • Point Cloud
  • Virtual Tour
  • Revit Model
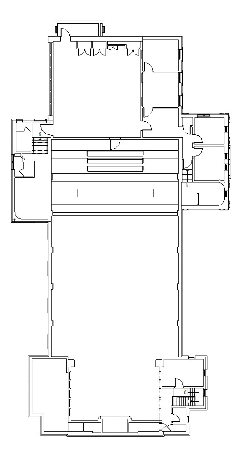
Revit Floor Plan
Revit Floor Plan and Point Cloud
Revit Model
Revit Model Section

Revit Model overlaying Point Cloud

Virtual

View More

Point Cloud

View More

Virtual

View More

Point Cloud

View More
0