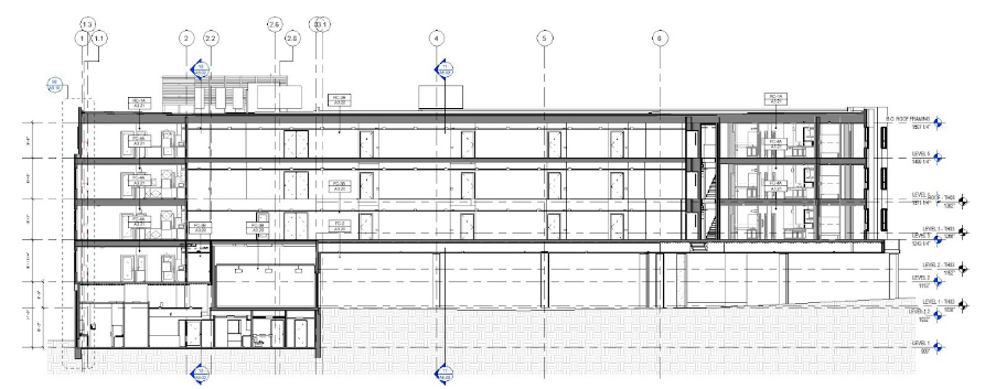
St. Theresa Condominium

Description

  • Location: Everett, MA
  • Square feet: 80,000 S.F.
  • Levels: 5 story condominium
  • Equipment: NavVis VLX mobile scanner and Trimble X7 tripod for exterior.
  • Scan time: 8 hours
  • Details: We were hired to validate the Revit model for the purposes of creating condo documentation. After laser scanning, we linked the point cloud into the Revit file provided by the client and updated the model to match. We then prepared the required condo documents for our client to submit.

Deliverables:

  • Point Cloud
  • Virtual Tour:approximately 800 images
  • Revit Model
0