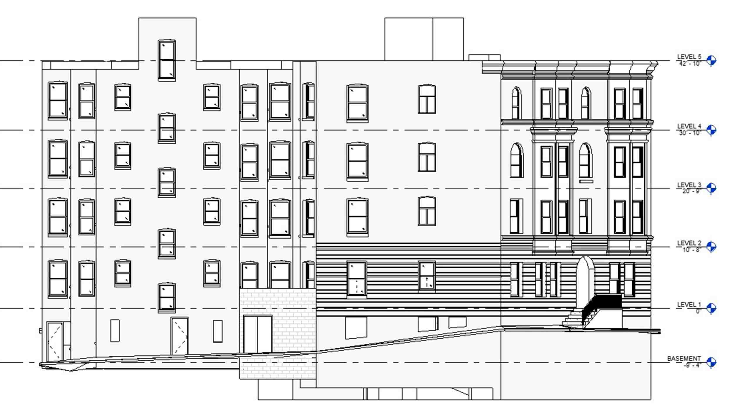
Description
Location: Boston, MA
Square feet: 13,780 S.F
Levels: 7 Levels
Details: FOUND Study Boston Fenway offers fully furnished, turnkey private and shared units in our centrally located living community.
Deliverables:
- Point Cloud
- Revit Model:
