Who Benefits
Services
Our Services
BIM Management & Support
Revit Training
Laser Scanning & Virtual Tours
Revit & As-Built Modeling
Digital Twins & Facilities Management
Products
Revit Standards & Templates
Revit Family Libraries
Resources
Knowledge Base
Blog
Help Desk
Tufts University Case Study
Portfolio
Commercial
Educational
Healthcare
Hospitality
Community
Residential
About Us
Contact Us
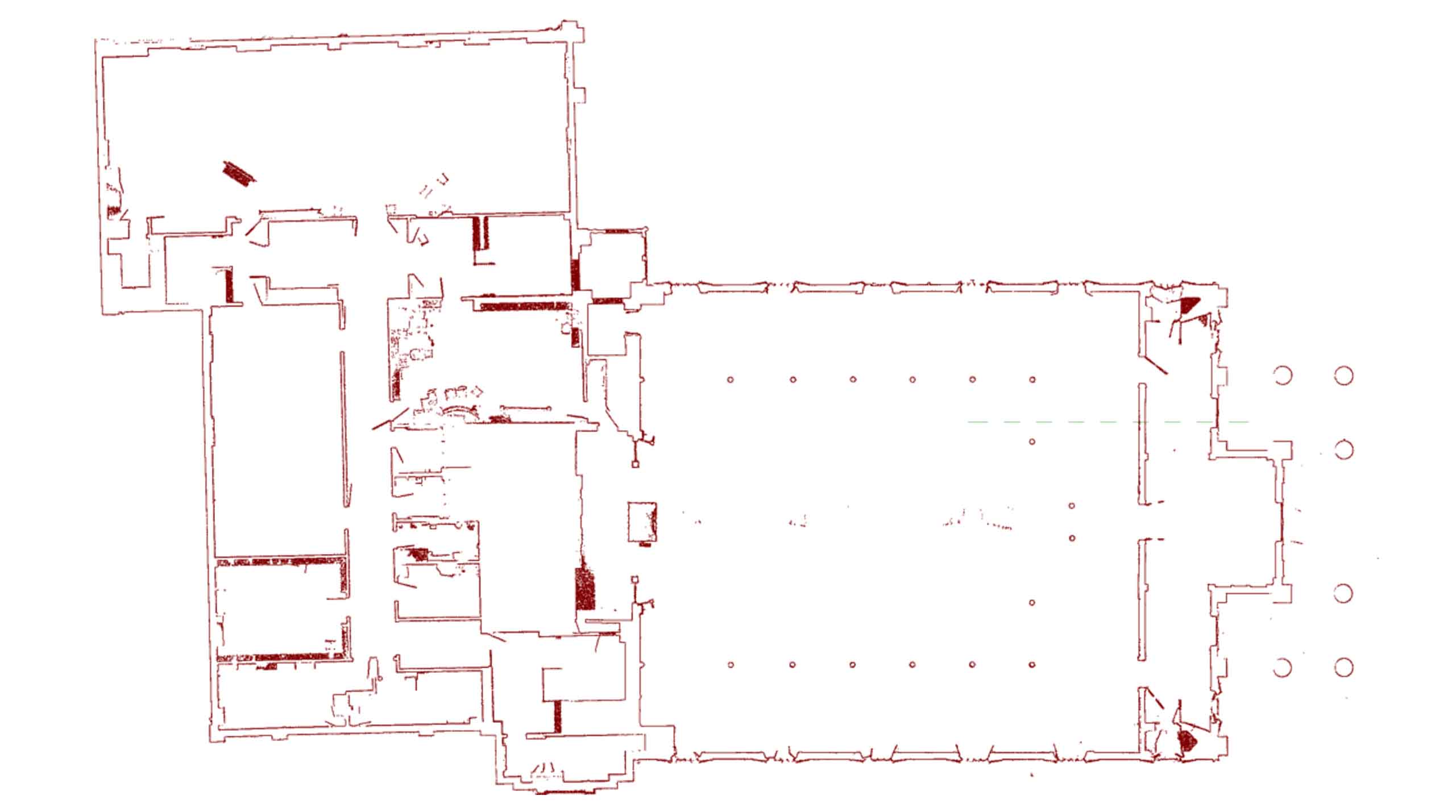
Old First Church
Description
Location:
Springfield, MA
Levels:
4 Levels
Deliverables:
Point Cloud
Virtual Tour
view
view
view
view
View More
View More
X Close
0